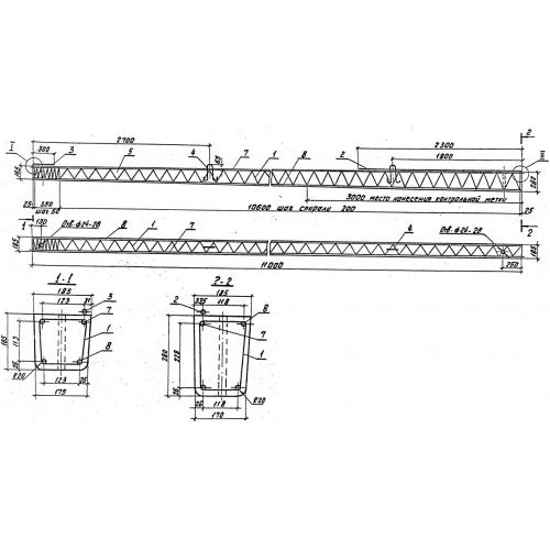
СВ 110
Характеристики изделия:
| Параметр | Значение |
|---|---|
| длина | 11000 мм |
| ширина | 185 мм |
| высота | 280 мм |
| вес | 1125 кг |
| серия | ТУ 5863-007-00113557-94 |
Цена:
Рассчитать стоимостьСВ 110 Стойки вибрированные по ТУ 5863-007-00113557-94.
| Параметр | Значение |
|---|---|
| длина | 11000 мм |
| ширина | 185 мм |
| высота | 280 мм |
| вес | 1125 кг |
| серия | ТУ 5863-007-00113557-94 |
СВ 110 Стойки вибрированные по ТУ 5863-007-00113557-94.
