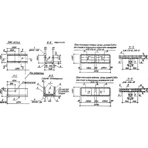
Л 13 лоток

Чертеж изделия:
Характеристики изделия:
ПараметрЗначение
длина5970 мм
ширина1480 мм
высота1320 мм
масса6250 кг
нормативный документСерия 3.900.1-12

Л 13 Лотки теплотрасс по Серии 3.900.1-12.