ДР-12

Чертеж изделия:
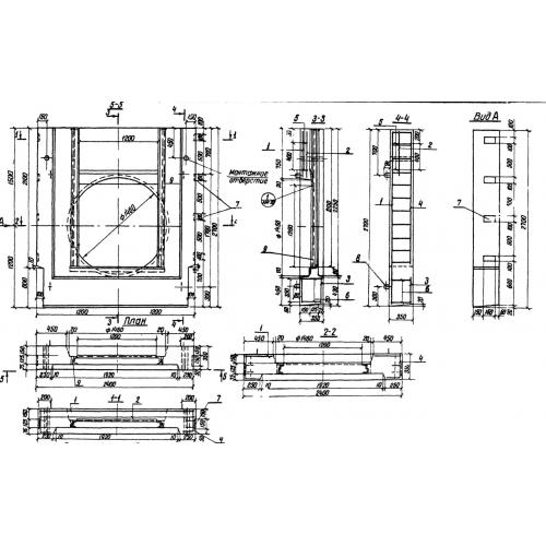
Характеристики изделия:
ПараметрЗначение
длина2400 мм
ширина350 мм
высота2700 мм
масса3000 кг
нормативный документСерия 3.820-6

ДР-12 Диафрагмы для регуляторов с закладной рамой по Серии 3.820-6.