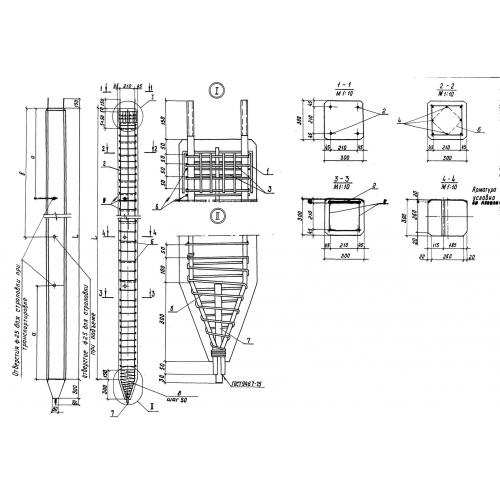
С 50-30

Чертеж изделия:
Характеристики изделия:
ПараметрЗначение
длина5000 мм
ширина300 мм
высота300 мм
вес1200 кг
серия3.501.1-153

С 50-30 Сваи с прямоугольным сечением по серии 3.501.1-153.