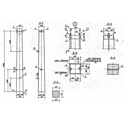
ВС 90-112 Стойки конические прямоугольного сечения

Чертеж изделия:
Характеристики изделия:
ПараметрЗначение
длина9000 мм
ширина417 мм
высота407 мм
масса2880 кг
нормативный документСерия 3.407.1-157

ВС 90-112   Вибропресованные стойки по Серии 3.407.1-157.