П 63.12

Чертеж изделия:
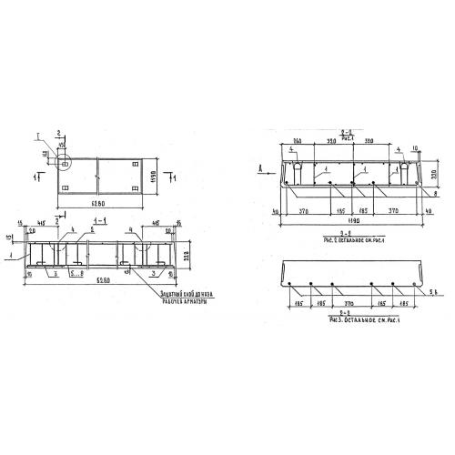
Характеристики изделия:
ПараметрЗначение
длина6280 мм
ширина1190 мм
высота220 мм
вес4050 кг
серия1.243.1-5

П 63.12 Панели перекрытий беспустотные по серии 1.243.1-5.