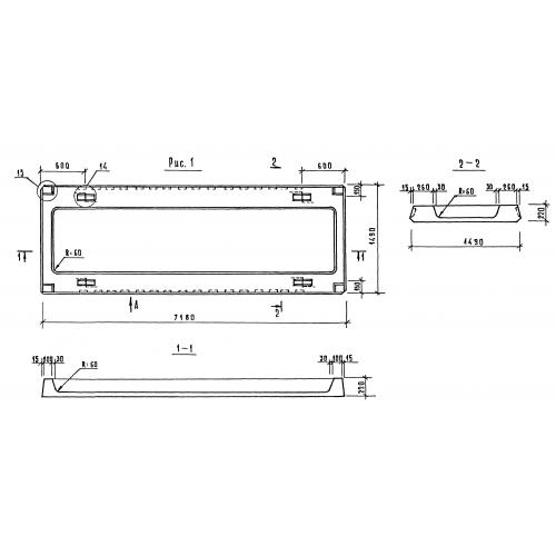
ПР 72.15

Чертеж изделия:
Характеристики изделия:
ПараметрЗначение
длина7180 мм
ширина1490 мм
высота220 мм
вес3100 кг
серия1.090.1-1/88

ПР 72.15 Ребристые плиты перекрытий по серии 1.090.1-1/88.