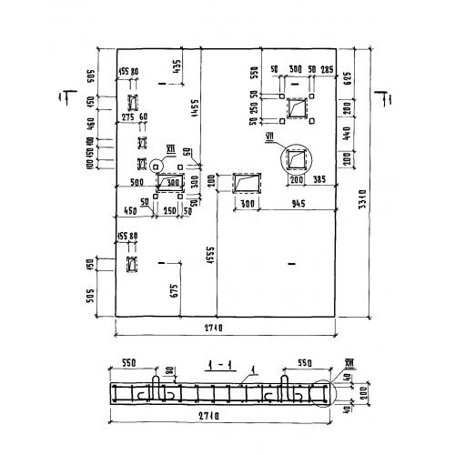
ПЛ 160-27 плита перекрытия шахты лифта

Чертеж изделия:
Характеристики изделия:
ПараметрЗначение
длина2710 мм
ширина3310 мм
высота200 мм
масса4350 кг
нормативный документСерия 1.089.1-1

ПЛ 160-27 Плиты перекрытия шахт лифтов  Серия 1.089.1-1.