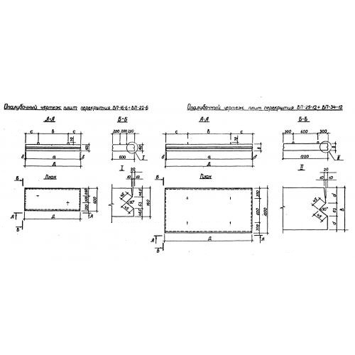
ВП 43

Чертеж изделия:
Характеристики изделия:
ПараметрЗначение
длина4300 мм
ширина1200 мм
высота360 мм
масса4560 кг
нормативный документАльбом РК 2303-86

ВП 43  Верхняя плита (плита перекрытия)  Альбом РК 2303-86.